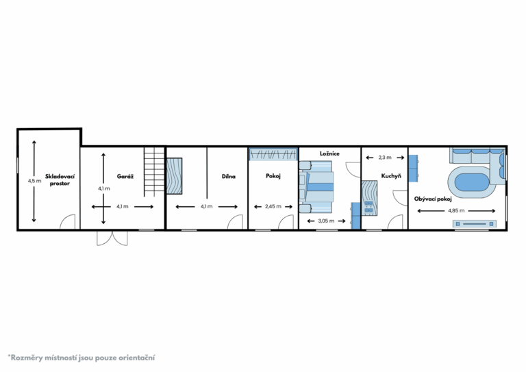
Nabízíme vám rodinný dům, který se nachází na okraji velmi klidné a malebné obce Nový Dvůr v okrese Nymburk. Jedná se o samostatně stojící cihlový dům o dispozici 3+1, který leží na pozemku s celkovou výměrou 499 m2. Náleží k němu také dílna a skladovací prostor, což je ideální pro domácí kutily nebo pro uskladnění zahradního náčiní. A samozřejmě nechybí garáž.
Tento dům je přízemní, ale nabízí možnost a potenciál pro vybudování obytné půdy, čímž se zvýší užitná plocha a zároveň využití prostoru. Je vhodný jak k trvalému bydlení, tak pro rekreaci.
Původní stav umožňuje novým majitelům provést vlastní úpravy a přizpůsobení podle svých představ. Dřevěná okna dodávají domu tradiční atmosféru.
V domě je zavedena elektřina a vytápění je možné buď uhlím, nebo elektrickými přímotopy. Voda je čerpána ze studny. Kanalizace se aktuálně plánuje, takže v budoucnu bude možné mít plné komfortní zázemí. K dispozici je prozatím suché WC, umístěné v zadní části budovy.
Příjezdová cesta k domu je obecní a zajistí vám snadný přístup po celý rok.
Nový Dvůr je malá obec v blízkosti přírody, ideální pro rodiny hledající únik z městského ruchu. Obyvatelé mohou k cestování využít autobusovou linku a pohodlně se tak dopravit do okolních i vzdálenějších obcí a měst. Kompletní občanská vybavenost je Nymburku, do kterého je to autem jen 10 minut. V okolí najdete zábavní park Mirakulum, ZOO Chleby, zámek Loučeň, nebo spa resort Chateau Mcely.
Pokud vás naše nabídka zaujala, neváhejte se ozvat a rádi vám poskytneme další informace.
