Nabízíme stavební pozemek o výměře 1 230 m² v jedné z nejžádanějších částí Luka nad Jihlavou. Součástí prodeje je také podíl 1/2 na vlastní příjezdové komunikaci o celkové výměře 264 m² (tj. podíl 132 m²). Celková plocha nabízeného celku tak činí 1 362 m².
Pozemek je mírně svažitý, orientovaný na jih a vyvýšený nad okolní zástavbou. Díky tomu nabízí otevřené výhledy do krajiny, dostatek denního světla a vysokou míru soukromí – kombinaci, která se v této lokalitě objevuje jen výjimečně. Součástí prezentace jsou realistické vizualizace a kompletní projekt rodinného domu s vydaným stavebním povolením, navržený přímo pro tento pozemek. Využití tohoto projektu není podmínkou koupě. Nový majitel má možnost realizovat vlastní stavební záměr dle platného územního plánu a svých individuálních představ. Projekt tak představuje přidanou hodnotu a možnost okamžité výstavby bez další administrativní zátěže.
Proč právě tento pozemek?
• jedno z posledních volných míst v této lokalitě
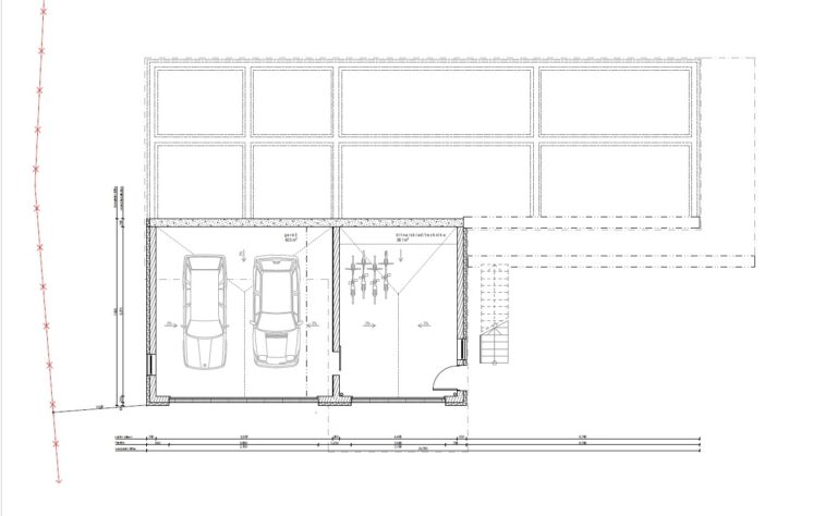
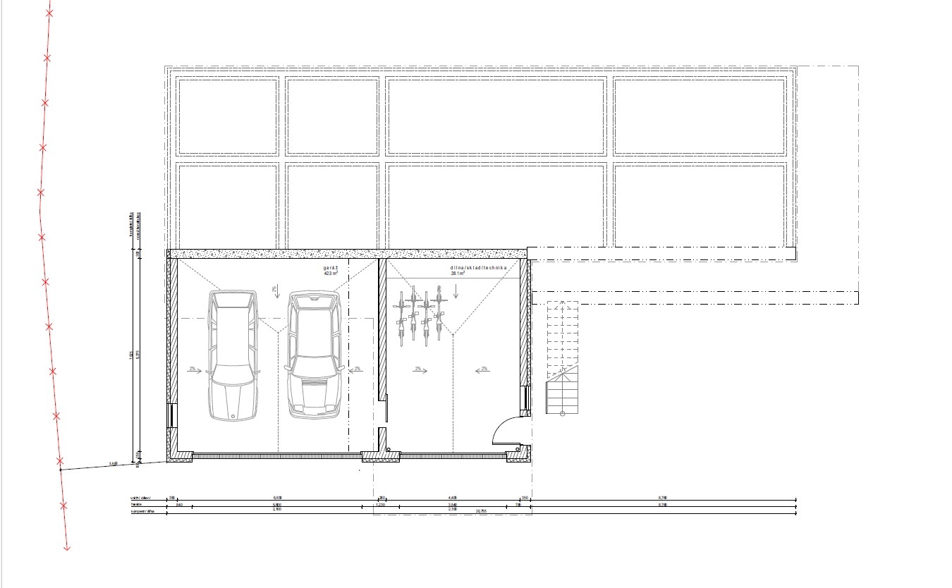
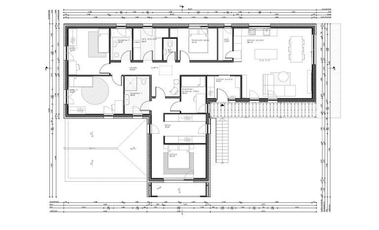
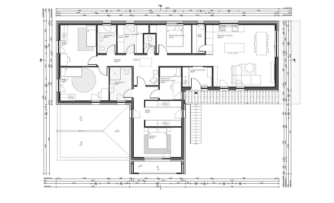
• vydané stavební povolení – moderní rodinný dům (bungalov ve tvaru T)
• kompletní projektová dokumentace v ceně – včetně vizualizací, zaměření a potřebných podkladů
• vlastní příjezdová komunikace
• možnost okamžité realizace výstavby
• napojení na inženýrské sítě – voda a elektřina na pozemku, kanalizace a plyn v dosahu
Technické údaje:
• celková výměra: 1 362 m²
• stavební pozemek: 1 230 m²
• podíl na příjezdové komunikaci: 132 m² (1/2 z 264 m²)
• voda a elektřina přímo na pozemku
• nová elektrická přípojka dimenzovaná pro rodinný dům
• kanalizace v dosahu cca 20 m
Součástí prodeje je také vyřešený přístup z obecní komunikace, což výrazně zvyšuje komfort budoucí výstavby i dlouhodobou hodnotu nemovitosti.
Luka nad Jihlavou je městys s kompletní občanskou vybaveností – školou, školkou, zdravotní péčí, obchody, službami i sportovišti. Pravidelné autobusové i vlakové spojení zajišťuje rychlé napojení na Jihlavu, která je vzdálena přibližně 12 km. Lokalita patří dlouhodobě mezi nejvyhledávanější v okolí díky kombinaci klidu, zeleně a skvělé dostupnosti.
Tento pozemek nabízí výjimečnou kombinaci polohy, výhledů, připravené infrastruktury a flexibility využití – ať už se rozhodnete využít hotový projekt s povolením, nebo realizovat vlastní stavbu podle svých představ.
Pokud hledáte pozemek s výhledem, atmosférou a jistotou kvalitní investice, tady jste správně.
